
Produkcja wysokogatunkowego papieru graficznego wymaga nie tylko rygorystycznej kontroli jakości samego produktu, ale również bezkompromisowego podejścia do jego pakowania. Gdy zróżnicowanie wymiarowe ładunków drastycznie rośnie, a tradycyjne metody manualnego nakładania kapturów stają się wąskim gardłem, konieczna jest zmiana paradygmatu. Przeczytaj, w jaki sposób inżynierowie TEZAURUS, we współpracy z marką MESSERSI, zaprojektowali w pełni zautomatyzowaną linię obkurczająco-wiążącą, która na bieżąco adaptuje się do każdego formatu palety, eliminując przestoje i radykalnie optymalizując gospodarkę magazynową folii.
Nawet najlepsza linia pakująca traci sens, jeśli strumień jednostek ładunkowych nie jest stabilny. W praktyce magazyn i transport wewnętrzny łączą kilka krytycznych stref: przyjęcia, buforowanie, kompletację, konsolidację i wysyłki. Gdy wózki „nie domagają”, rośnie WIP, pojawiają się wąskie gardła, a przestoje przenoszą się na kolejne odcinki łańcucha.
Dlatego traktujemy intralogistykę jak element systemu jakości obsługi – tak samo ważny jak dobór technologii pakowania, modernizacja stanowisk czy automatyzacja gniazd. Jako firma działająca w obszarze automatyzacji i linii produkcyjnych od 1990 roku, patrzymy na proces end-to-end, a nie wyłącznie na pojedynczą maszynę.
Od ponad trzech dekad dostarczamy przemysłowi rozwiązania zwiększające wydajność ciągów technologicznych. Niedawno zgłosił się do nas klient – wiodący producent wysokogatunkowego papieru graficznego oraz kartonu w arkuszach. W tej specyficznej branży, produkt opuszczający fabrykę musi być absolutnie perfekcyjnie zabezpieczony. Stosy papieru są niezwykle wrażliwe na zmiany wilgotności, zanieczyszczenia oraz uszkodzenia mechaniczne krawędzi podczas transportu wózkiem widłowym.
Aby spełnić standardy premium, ładunki te muszą być stabilizowane na wymiarowych paletach drewnianych w sposób, który gwarantuje stuprocentową szczelność i wodoszczelność, a jednocześnie zachowuje nienaganną estetykę opakowania.
Przed naszą interwencją, proces pakowania u klienta opierał się na trzech półautomatycznych obkurczarkach elektrycznych MESSERSI T110. Pracownik transportował ładunek wózkiem na stanowisko, ręcznie dobierał i nakładał gotowy kaptur z folii termokurczliwej, a następnie uruchamiał cykl obkurczania. Na koniec, paleta była ręcznie spinana dwiema pionowymi taśmami.
Mimo zastosowania solidnych maszyn, sam schemat procesu generował poważne problemy operacyjne i logistyczne:
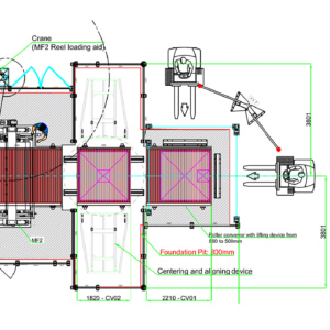
Nasz dział projektów stanął przed zadaniem stworzenia kompleksowego, zautomatyzowanego gniazda pakowania, które całkowicie wyeliminuje pracę ręczną, odciąży operatorów i zagwarantuje powtarzalność. Wyzwanie było jednak złożone inżynieryjnie. Po pierwsze, klient dysponował bardzo wąską, mocno ograniczoną przestrzenią na hali produkcyjnej. Po drugie, zróżnicowanie wymiarowe produktów było ekstremalne:
Kluczowym wymogiem było to, aby palety mogły być podawane na linię w tak zwanym „mixie”. Oznaczało to, że system musiał być wyposażony w zaawansowane układy pomiarowe, które zeskanują wymiary nadjeżdżającego ładunku i w ułamku sekundy automatycznie przezbroją wszystkie maszyny wchodzące w skład ciągu technologicznego.
Będąc oficjalnym dystrybutorem urządzeń MESSERSI na terenie Polski, połączyliśmy siły z włoskimi konstruktorami. Bazując na sprawdzonych rozwiązaniach wdrożonych wcześniej m.in. dla firmy BURGO (jednego z wiodących producentów papieru w Europie), zaprojektowaliśmy wysoce zindywidualizowaną linię pakującą.
Proces zabezpieczania ładunku w nowym systemie odbywa się w pełni automatycznie i składa się z następujących etapów:
Do realizacji tego ambitnego projektu wykorzystaliśmy zaawansowane moduły z oferty MESSERSI, które jako TEZAURUS na bieżąco dostarczamy, instalujemy i serwisujemy:
Dostarczenie maszyn to w inżynierii zaledwie połowa sukcesu. Prawdziwa wartość dodana tkwi we wdrożeniu i późniejszym utrzymaniu ruchu. Rozumiemy to doskonale. Projekt ten obejmuje nie tylko doradztwo technologiczne, ale również pełen montaż przez naszą polską, wykwalifikowaną ekipę techniczną. Przeprowadzimy gruntowne szkolenia operatorów z zakresu obsługi, konserwacji i diagnostyki błędów.
Co równie ważne, zapewniamy najszybszy w Polsce serwis gwarancyjny i pogwarancyjny. Posiadamy ogromne zaplecze magazynowe części zamiennych oraz materiałów eksploatacyjnych (takich jak najwyższej jakości folie i taśmy PET). Dzięki temu nasi klienci zyskują pewność, że raz zoptymalizowany proces produkcji będzie działał bez zakłóceń przez wiele lat, obniżając koszty i zwiększając przepustowość zakładu.
Zastanawiasz się nad automatyzacją procesu pakowania w swoim zakładzie? Skontaktuj się z naszym działem projektów. Przeanalizujemy Twoje ładunki i opracujemy optymalny ciąg technologiczny dostosowany do Twoich realiów produkcyjnych.
To może Cię zainteresować...
W intralogistyce nie wygrywa ten, kto ma „najszybszy magazyn”, tylko ten, kto ma magazyn przewidywalny: bezpieczny, ergonomiczny i odporny na wahania obciążenia.
W inżynierii pakowania każdy produkt wymusza indywidualne podejście do doboru technologii zabezpieczania. W przypadku naszego ostatniego projektu, Klientem był producent wysokiej jakości arkuszy papieru, składowanych w stosach na paletach.
Zabezpieczanie ładunków na paletach to jeden z najważniejszych etapów procesu logistycznego, od którego zależy bezpieczeństwo towaru w transporcie. Tradycyjne metody ręczne, wykorzystujące zapinki i napinacze, powoli odchodzą do lamusa, ustępując miejsca nowoczesnym technologiom.